Retour
Your search results

Box artisanal idéalement situé à la Route de Borgeau à Carrouge, dans un environnement calme et facilement accessible.

À quelques minutes du centre de Carrouge. Environ 10 minutes d’Oron, 15 minutes de Moudon , 20 minutes de Lausanne.

Idéal pour artisan, stockage, petite activité indépendante ou dépôt de matériel. Accès pratique en véhicule utilitaire, stationnement aisé à proximité.

Équipements de base :

– Tableau électrique individuel (triphasé, 16 A / 30 mA)
– Arrivées en attente pour eau claire et eaux usées
– Pré-équipement pour raccordement internet
– Fenêtres en façade avec stores extérieurs à lamelles


Sur demande, il est possible d’effectuer des aménagements complémentaires, notamment :

– Création d’un local sanitaire avec WC et douche
– Installation d’une petite kitchenette
– Système de chauffage/climatisation (PAC ou climatiseur réversible)


1 place de parc obligatoire en sus (CHF 50.00 / mois)


Description des surfaces :

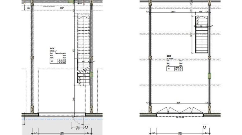
Rez-de-chaussée d’env. 48 m², hauteur libre env. 4,00 m, charge utile 1’000 kg/m²
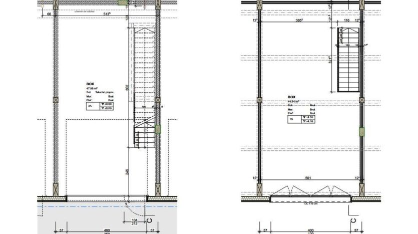
Étage d’env. 44 m², hauteur libre de 2,27 m à 3,59 m, charge utile 300 kg/m²

Dimensions intérieures : env. 4,98 m x 9,65 m

Accès par porte sectionnelle (4,00 m x 3,50 m) avec porte de service intégrée

Escalier métallique donnant accès à l’étage

Les personnes intéressées sont invitées à manifester leur intérêt en nous adressant un bref descriptif des intentions d’affectation souhaitées. Nous les recontacterons pour planifier la suite (visite, constitution du dossier, etc.).

My details

Contact Me

À louer – Box modulable, sur deux niveaux – Jorat-Mézières

Property Id : 18125
Loyer:CHF 1'450.00
Localité: Carrouge (VD)
Adresse: Route du Borgeau
Loyer Brut : CHF 1'500.00
Loyer Net : CHF 1'450.00
Charges: CHF 50.00
Pièces: 1
Disponibilité: 15-03-2026
Téléphone: 021 320 34 73
Fax: 021 320 34 72
E-mail: info@mbsa.ch
Contact Pour Visite: M&B gérance immobilière SA
Tél. Pour Visite: 021 320 34 73
E-mail Pour Visite: info@mbsa.ch
Remarque Pour Visite: Les personnes intéressées sont invitées à manifester leur intérêt en nous adressant un bref descriptif des intentions d'affectation souhaitées.
ajouter aux favoris
524