Retour
Your search results


Immeuble idéalement situé au coeur de Vallorbe, à la Rue de l’Ancienne-Poste 52, proche de toutes les commodités.
Ce bâtiment de 4 appartements a été entièrement rénové avec des matériaux de qualité et des finitions haut de gamme.

Il offre notamment :

– Système de vidéophonie avec accès sécurisé par clavier à code
– Connexion à la fibre optique et aux prises mutimédia dans chaque logement
– Production partielle d’électricité grâce à des panneaux photovoltaïques
– Production partielle d’eau chaude assurée par des panneaux solaires thermiques
– Chauffage par pompe à chaleur, garantissant confort et efficacité énergétique
– Caves individuelles pour chaque appartement
– Local vélos et poussettes sécurisé, accessible via un clavier à code
– Jardin commun à disposition de l’ensemble des locataires

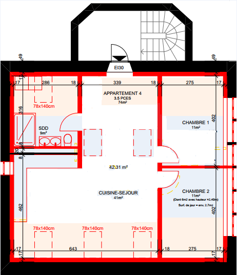
Ce logement d’une surface d’environ 74 m2 est équipé d’un chauffage au sol, de triple vitrage ainsi que d’un éclairage design avec spots intégrés dans le hall, la cuisine et la salle de bains.

Possibilité de prendre en charge la conciergerie de l’immeuble en échange d’une réduction de loyer.

L’appartement se compose comme suit :

– Un hall d’entrée
– Un séjour avec cuisine ouverte moderne
– Deux chambres
– Une salle de bains/WC avec douche à l’italienne et buanderie équipée (machine à laver le linge et sèche-linge)

Une cave complète ce bien.

Deux places de parc extérieures sont disponibles à la location au prix de CHF 80.00 par mois chacune, ainsi que deux places de parc couvertes pour voitures électriques au prix de CHF 125.00 par mois chacune.

En cas d’intérêt et pour convenir d’une visite, veuillez prendre contact avec M&B Gérance immobilière SA.

Photos générées par IA




My details

Contact Me

Vivez au coeur du village dans cet appartement chaleureux et moderne, situé sous les combles. Ce 3 pièces avec hall offre de beaux volumes et une luminosité exceptionnelle.

Property Id : 17900
Loyer:CHF 1'610.00
Localité: Vallorbe
Adresse: Rue de l'Ancienne-Poste 52
Loyer Brut : CHF 1'760.00
Loyer Net : CHF 1'610.00
Charges: CHF 150.00
Pièces: 3.5
Surface (m2): 74
Disponibilité: A convenir
Téléphone: 021 320 34 73
Fax: 021 320 34 72
E-mail: andrea.baldi@mbsa.ch
Contact Pour Visite: Baldi Andrea
Tél. Pour Visite: 021 320 34 73
E-mail Pour Visite: andrea.baldi@mbsa.ch
Remarque Pour Visite: En cas d'intérêt et pour convenir d'une visite, veuillez prendre contact avec la gérance.
ajouter aux favoris
916